Lodi, CA 95240


Mortgage Calculator
Monthly Payment (Est.)
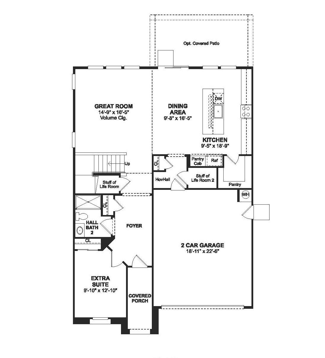
$3,085Discover modern comfort and thoughtful craftsmanship in the Oban plan, a beautifully designed two-story home located in the highly desirable Sonterra community. Offering 5 bedrooms and 3 baths, this residence is tailored for today's flexible lifestyles. The gourmet kitchen is a standout, featuring an oversized island, rich Midnight-painted cabinetry with matte black hardware, Steel Grey countertops, and premium stainless-steel appliances, ideal for both everyday living and entertaining. The light-filled great room flows effortlessly from the kitchen and opens to a covered patio, creating a seamless indoor-outdoor living experience. A first-floor bedroom adds valuable versatility, perfect for guests, multigenerational living, or a private home office. Upstairs, the primary suite serves as a serene retreat with a spa-inspired bath showcasing a freestanding soaking tub, dual vanities, and refined designer finishes. Three additional bedrooms provide comfort and space for family or guests. Thoughtfully designed and beautifully appointed, this home offers the perfect blend of style, comfort, and community living at Sonterra. ***Prices subject to change.
| 6 days ago | Listing updated with changes from the MLS® | |
| 6 days ago | Price changed to $676,146 | |
| 2 months ago | Listing first seen on site |
All measurements and all calculations of the area are approximate. Information provided by Seller/Other sources, not verified by Broker. All interested persons should independently verify the accuracy of information. Provided properties may or may not be listed by the office/agent presenting the information. Data maintained by MetroList® may not reflect all real estate activity in the market. All real estate content on this site is subject to the Federal Fair Housing Act of 1968, as amended, which makes it illegal to advertise any preference, limitation or discrimination because of race, color, religion, sex, handicap, family status or national origin or an intention to make any such preference, limitation or discrimination. Terms of Use
Last checked 2026-03-02 09:17 AM PST


Did you know? You can invite friends and family to your search. They can join your search, rate and discuss listings with you.